4 rum lägenhet i Örnsköldsvik
-
Yta
- 90 m²
-
Bostadstyp
- Lägenhet
-
Rum
- 4 rum
Tillgänglig nu
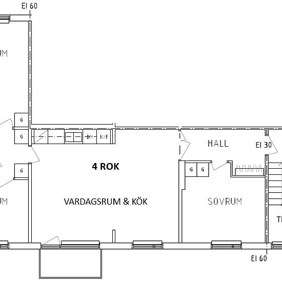
Här erbjuds en ljus och nyrenoverad lägenhet på 90 kvadrat med öppen planlösning och med fönster i tre väderstreck. Nytt kök från Marbodal med diskmaskin. Nya golv och nya fönster. Ljusa materialval i lägenheten ger ett sammanhållet intryck och höjer trivselfaktorn. Relativt gott om förvaring med ordentliga garderober i sovrummen. Lägenheten ligger på tredje våningen med balkong i soligt läge och tillgång till stor gemensam uteplats på bakgård. Viss utsikt över Höglandssjön. Gemensam tvättstuga i källarplan. OMGIVNING - Fastigheten ligger c...
- Hyra
- 10 293 kr per månad
- Plats
- 89141, Örnsköldsvik
- Hyrestid
- -
- Verifierad hyresvärd
- Nej
- Datum
- Igår
- Tillgängligt
- Tillgänglig nu
- Driftkostnader
- Kontakta hyresvärden
- Deposition
- Kontakta hyresvärden
- Förbetald hyra
- Kontakta hyresvärden
Plats