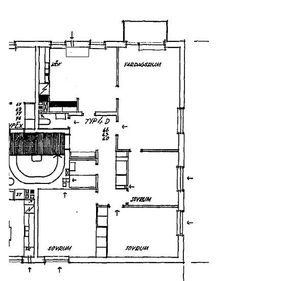
4 rum lägenhet i Norrköping
-
Yta
- 95 m²
-
Bostadstyp
- Lägenhet
-
Rum
- 4 rum
Tillgänglig nu
En trevlig fyra rum och kök på Söder. Gavellägenhet där balkongen vetter in mot gemensam innergård som kan jämföras med parkstandard. I källaren finns lägenhetsförråd och tvättstuga med elektronisk bokning. Värme, Vatten samt Kabel-TV via Telia ingår i hyran. Fastigheten är ansluten till Telia Fiber. Obs Vån 3(4) - Hiss finns ej. Hyran avser 2025 års hyra
- Hyra
- 11 918 kr per månad
- Plats
- 60345, Norrköping
- Hyrestid
- -
- Verifierad hyresvärd
- Nej
- Datum
- Idag
- Tillgängligt
- Tillgänglig nu
- Driftkostnader
- Kontakta hyresvärden
- Deposition
- Kontakta hyresvärden
- Förbetald hyra
- Kontakta hyresvärden
Plats