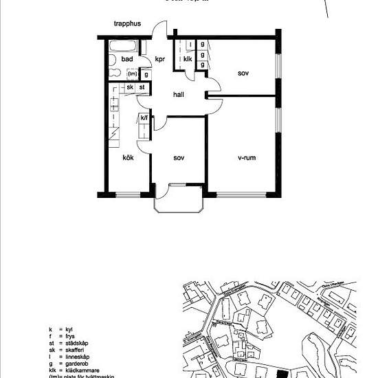
3 rum lägenhet i Nyköping
-
Yta
- 75 m²
-
Bostadstyp
- Lägenhet
-
Rum
- 3 rum
Ett lugnt område med gångavstånd till centrum.
- Hyra
- 8 744 kr per månad
- Plats
- 61134, Nyköping
- Hyrestid
- -
- Verifierad hyresvärd
- Nej
- Datum
- Igår
- Tillgängligt
- 2026-04-01
- Driftkostnader
- Kontakta hyresvärden
- Deposition
- Kontakta hyresvärden
- Förbetald hyra
- Kontakta hyresvärden
Plats