3 rum lägenhet i Norrköping

Yta
79 m²
Bostadstyp
Lägenhet
Rum
3 rum

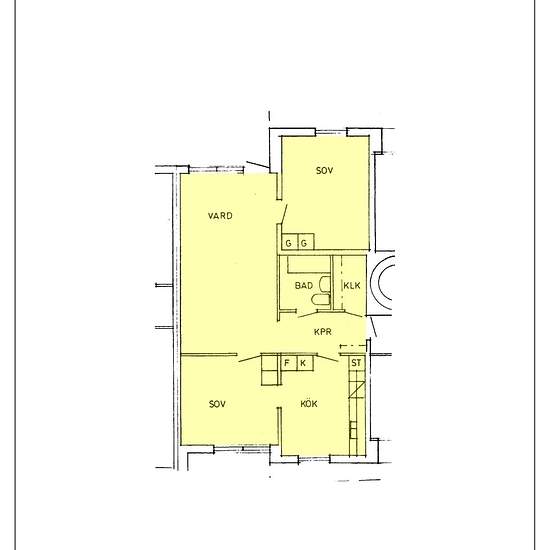
Välkommen till en 3:a i markplan i kv. Asken! Mycket trevlig lägenhet med uteplats mot innergården. I köket finns diskmaskin och induktionsspis och i hallen finns en klädkammare. I badrummet är det förberett för egen tvättmaskin. I hyran ingår tv-paket Telia Lagom med 25 kanaler. Hela lägenheten har målats och fått nya golv. Hyran avser 2025 års hyresnivå.

Hyra
10 216 kr per månad
Hyrestid
-
Verifierad hyresvärd
Ja
Datum
Idag
Tillgängligt
2026-02-01
Driftkostnader
Kontakta hyresvärden
Deposition
Kontakta hyresvärden
Förbetald hyra
Kontakta hyresvärden
Plats