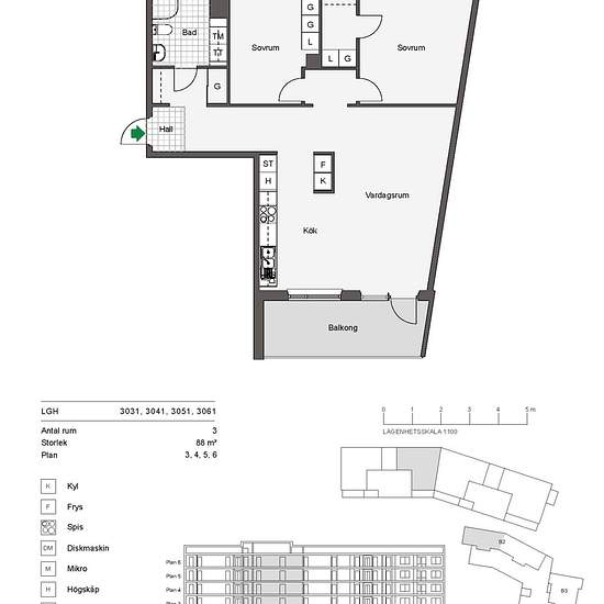
3 rum lägenhet i Norrköping
-
Yta
- 88 m²
-
Bostadstyp
- Lägenhet
-
Rum
- 3 rum
Stor härlig 3:a med balkong i söderläge. Öppen planlösning med lite spännande vinkel. Här bor du med all bekvämlighet du kan tänkas behöva. Badrummet har tvättmaskin och torktumlare. I badrummet finns även golvvärme som du kan reglera själv. Fastigheten har eget gym, samlingslokal med övernattningsrum och elbilpool. Hyran avser 2025-års hyresnivå.
- Hyra
- 13 650 kr per månad
- Plats
- 60233, Norrköping
- Hyrestid
- -
- Verifierad hyresvärd
- Ja
- Datum
- 2 dagar sedan
- Tillgängligt
- 2026-04-01
- Driftkostnader
- Kontakta hyresvärden
- Deposition
- Kontakta hyresvärden
- Förbetald hyra
- Kontakta hyresvärden
Plats