3 rum lägenhet i Linköping
-
Yta
- 73 m²
-
Bostadstyp
- Lägenhet
-
Rum
- 3 rum
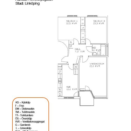
3 rum och kök i Berga – Balkong, diskmaskin och genomgående fräscha ytskikt Välkommen till en ljus och välplanerad trerumslägenhet i populära Berga. Här bor du bekvämt med ljust ytskikt, generösa ljusinsläpp och en trivsam balkong. Om bostaden Det helkaklade badrummet i vitt är utrustat med badkar och handdukstork. Båda sovrummen har ljusa väggar och mjuka textilgolv i harmoniska färger, vilket skapar en lugn och ombonad känsla. Funktioner och bekvämligheter Balkong med utgång från vardagsrum Parkettgolv i vardagsrum Helkaklat badrum med b...
- Hyra
- 8 508 kr per månad
- Plats
- 58735, Linköping
- Hyrestid
- -
- Verifierad hyresvärd
- Ja
- Datum
- 2 dagar sedan
- Tillgängligt
- 2026-07-01
- Driftkostnader
- Kontakta hyresvärden
- Deposition
- Kontakta hyresvärden
- Förbetald hyra
- Kontakta hyresvärden
Plats