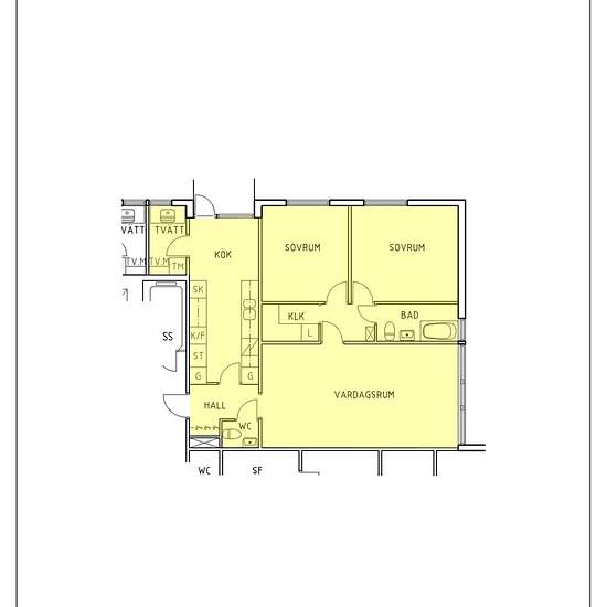
3 rum lägenhet i Karlstad

Yta
77 m²
Bostadstyp
Lägenhet
Rum
3 rum

Välkommen att hyra en mysig trea i bottenplan med grovkök samt två toaletter. Grovköket är förberett för tvättmaskin om man önskar och det är förberett för diskmaskin i köket. Säkerhetsdörr kommer att installeras i samband med ny hyresgäst.

Hyra
8 814 kr per månad
Hyrestid
-
Verifierad hyresvärd
Ja
Datum
Idag
Tillgängligt
2026-04-01
Driftkostnader
Kontakta hyresvärden
Deposition
Kontakta hyresvärden
Förbetald hyra
Kontakta hyresvärden
Plats