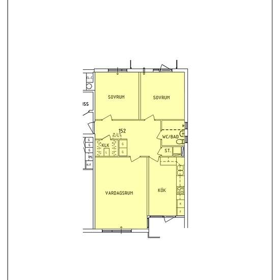
3 rum lägenhet i Karlstad
-
Yta
- 75 m²
-
Bostadstyp
- Lägenhet
-
Rum
- 3 rum
Välkommen att hyra en trea med två balkonger varav en i söderläge och en är inglasad och vetter ut mot vackra Klarälven och Stenbron. Lägenheten kommer målas upp innan inflyttning och köksluckorna kommer lackas. Förberett för diskmaskin, ej möjligt med tvättmaskin i badrummet.
- Hyra
- 9 283 kr per månad
- Plats
- 65220, Karlstad
- Hyrestid
- -
- Verifierad hyresvärd
- Ja
- Datum
- 2 dagar sedan
- Tillgängligt
- 2026-03-15
- Driftkostnader
- Kontakta hyresvärden
- Deposition
- Kontakta hyresvärden
- Förbetald hyra
- Kontakta hyresvärden
Plats