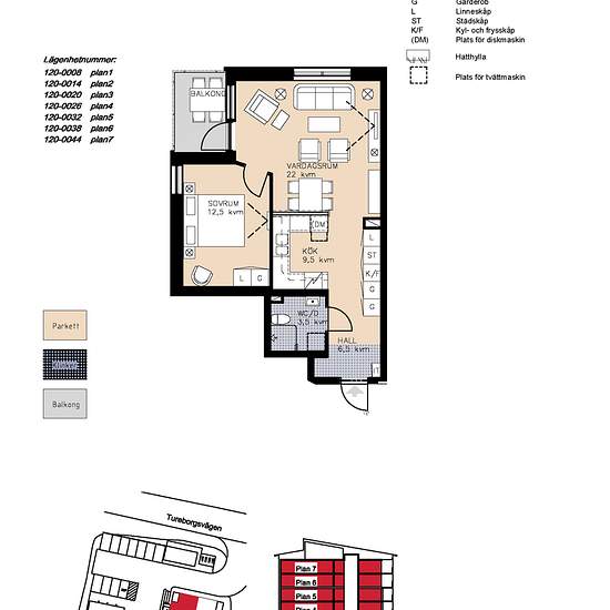
2 rum lägenhet i Uddevalla
-
Yta
- 54 m²
-
Bostadstyp
- Lägenhet
-
Rum
- 2 rum
Rökfritt boende Balkong Hiss Kostnad för kall- och varmvatten tillkommer Värme Ingår
- Hyra
- 7 925 kr per månad
- Plats
- 45133, Uddevalla
- Hyrestid
- -
- Verifierad hyresvärd
- Ja
- Datum
- Idag
- Tillgängligt
- 2026-04-01
- Driftkostnader
- Kontakta hyresvärden
- Deposition
- Kontakta hyresvärden
- Förbetald hyra
- Kontakta hyresvärden
Plats