2 rum lägenhet i Stockholm

Yta
57 m²
Bostadstyp
Lägenhet
Rum
2 rum
Tillgänglig nu

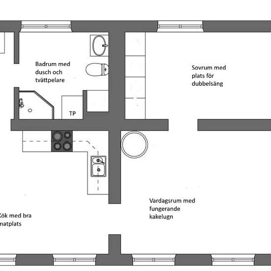
English text below: Välplanerad och charmig lägenhet i lugnt och centralt läge i Gamla Stan uthyres långsiktigt direkt av ägaren. Ägarlägenhet med fri uthyrning. Redo för uthyrning omgående fram till 21:a mars. Lägenheten ligger med några minuters promenad till tunnelbanan eller bussar. Välkomnande hall med bra förvaring. Stort och ljust badrum med tvättställ, värmegolv, duschhörna och egen tvättmaskin och torktumlare. Kök med spis, ugn, mikro, kyl och frys och trevlig matplats med plats för fyra. Vardagsrum med fungerande kakelugn i origi...

Hyra
19 000 kr per månad
Hyrestid
-
Verifierad hyresvärd
Nej
Datum
Idag
Tillgängligt
Tillgänglig nu
Driftkostnader
Kontakta hyresvärden
Deposition
Kontakta hyresvärden
Förbetald hyra
Kontakta hyresvärden
Plats