2 rum lägenhet i Stockholm
-
Yta
- 57 m²
-
Bostadstyp
- Lägenhet
-
Rum
- 2 rum
Tillgänglig nu
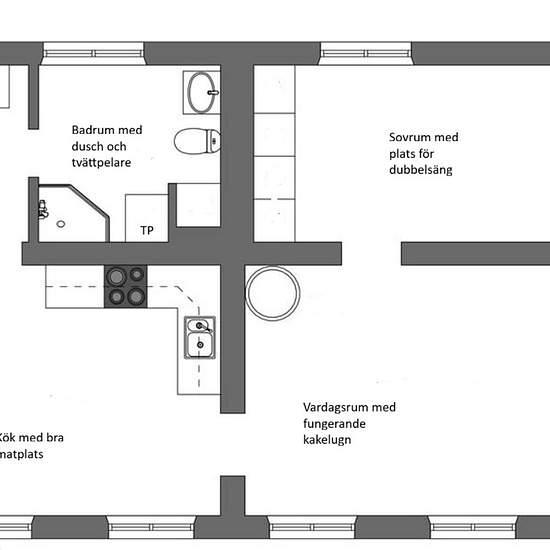
English text below: Välplanerad och charmig lägenhet i lugnt och centralt läge i Gamla Stan uthyres långsiktigt direkt av ägaren. Ägarlägenhet med fri uthyrning. Nuvarande hyresgäster planerar utflytt slutet av Nov. Lägenheten ligger med några minuters promenad till tunnelbanan eller bussar. Välkomnande hall med bra förvaring. Stort och ljust badrum med tvättställ, värmegolv, duschhörna och egen tvättmaskin och torktumlare. Kök med spis, ugn, mikro, kyl och frys och trevlig matplats med plats för fyra. Vardagsrum med fungerande kakelugn i ...
- Hyra
- 22 000 kr per månad
- Plats
- 11131, Stockholm
- Hyrestid
- -
- Verifierad hyresvärd
- Nej
- Datum
- Idag
- Tillgängligt
- Tillgänglig nu
- Driftkostnader
- Kontakta hyresvärden
- Deposition
- Kontakta hyresvärden
- Förbetald hyra
- Kontakta hyresvärden
Plats