2 rum lägenhet i Norrköping
-
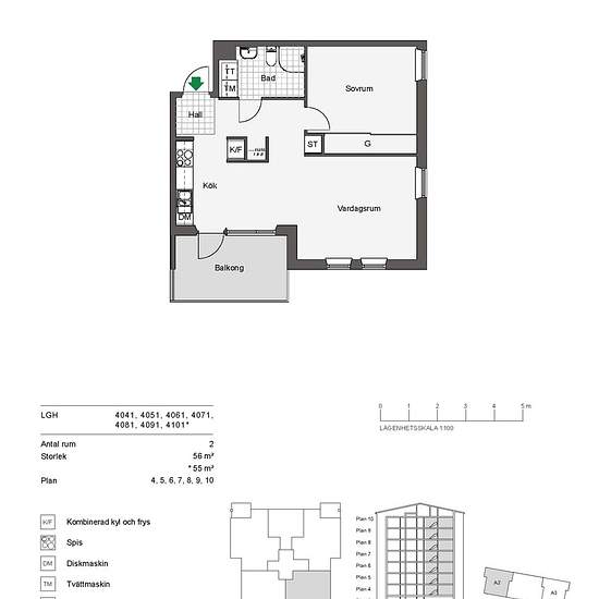
Yta
- 56 m²
-
Bostadstyp
- Lägenhet
-
Rum
- 2 rum
Välkommen till denna stilrena tvåa med öppen planlösning som bjuder på både komfort och funktionalitet. Här möts du av ett modernt kök utrustat med diskmaskin, induktionshäll och varmluftsugn – perfekt för dig som gillar att laga mat. I det fräscha badrummet finns både tvättmaskin och torktumlare, vilket gör vardagen smidigare. Lägenheten har en härlig balkong i söderläge där du kan njuta av solen större delen av dagen – en perfekt plats för morgonkaffet eller kvällens middag. Den öppna planlösningen mellan kök och vardagsrum skapar en lufti...
- Hyra
- 10 039 kr per månad
- Plats
- 60233, Norrköping
- Hyrestid
- -
- Verifierad hyresvärd
- Ja
- Datum
- Idag
- Tillgängligt
- 2026-02-01
- Driftkostnader
- Kontakta hyresvärden
- Deposition
- Kontakta hyresvärden
- Förbetald hyra
- Kontakta hyresvärden
Plats