2 rum lägenhet i Helsingborg
-
Yta
- 63 m²
-
Bostadstyp
- Lägenhet
-
Rum
- 2 rum
Tillgänglig nu
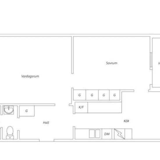
Välkommen till en ljus och välplanerad tvåa om 62 kvm i ett lugnt och omtyckt område i Helsingborg, Rosengården. Här bor du bekvämt med genomgående planlösning, fina ljusinsläpp och generösa ytor samt en stor inglasad balkong som fungerar som ett extra rum stora delar av året. Lägenheten erbjuder ett rymligt vardagsrum med plats för både soffgrupp och matbord, ett stilrent kök med goda arbetsytor och förvaring samt matplats vid fönster. Sovrummet är rofyllt med plats för dubbelsäng och garderober, och härifrån nås den inglasade balkongen me...
- Hyra
- 8 500 kr per månad
- Plats
- 25277, Helsingborg
- Hyrestid
- -
- Verifierad hyresvärd
- Nej
- Datum
- 4 dagar sedan
- Tillgängligt
- Tillgänglig nu
- Driftkostnader
- Kontakta hyresvärden
- Deposition
- Kontakta hyresvärden
- Förbetald hyra
- Kontakta hyresvärden
Plats