1 rum lägenhet i Uddevalla
-
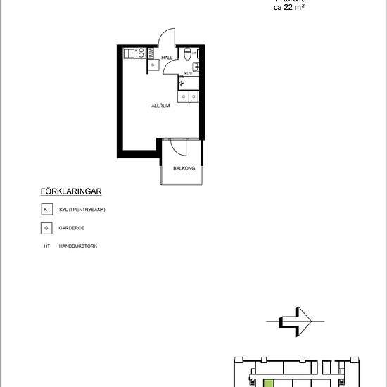
Yta
- 22 m²
-
Bostadstyp
- Lägenhet
-
Rum
- 1 rum
I ett trygghetsboende ska det vara lätt och bekvämt att ta sig fram i lägenheten, i fastigheten och till och från huset. Det ska vara närhet till service och kommunikationer. Ett trygghetsboende bjuder, om man så önskar in till social samvaro i form av gemensamma ytor, aktiviteter och möjlighet att äta gemensamma måltider. Trygghetsboenden är inte behovsprövade av Socialtjänsten, som sökande behöver du ha fyllt 70 år i samband med inflyttning och uppfylla Uddevallahems övriga krav. Rökfritt boende Trygghetsboende för dig s...
- Hyra
- 3 074 kr per månad
- Plats
- 45160, Uddevalla
- Hyrestid
- -
- Verifierad hyresvärd
- Ja
- Datum
- Idag
- Tillgängligt
- 2026-05-01
- Driftkostnader
- Kontakta hyresvärden
- Deposition
- Kontakta hyresvärden
- Förbetald hyra
- Kontakta hyresvärden
Plats