8 rum lägenhet i Alvesta

Yta
264 m²
Bostadstyp
Lägenhet
Rum
8 rum

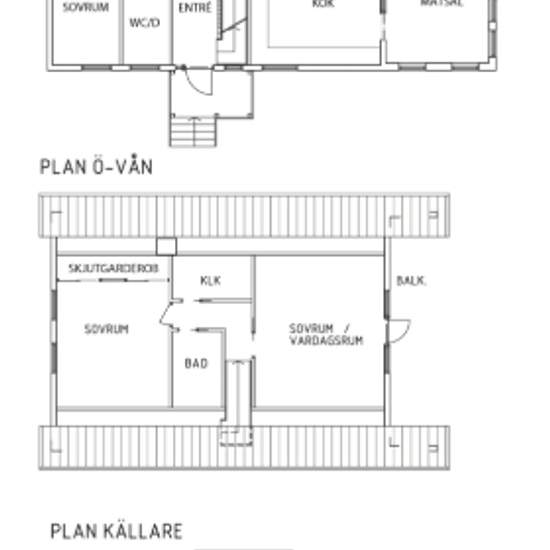
Stor villa med renoverade och fräscha ytskikt som hyrs ut omöblerad tills vidare. 158 Ligger enskilt mellan Alvesta och Växjö. Tar ca 10 minuter med bil till Grand Samarkand i Växjö och mindre än 10 minuter in till centrala Alvesta. 3 km till busshållplats vid väg 25/27. 4 sovrum på markplan och 2 stora på ovanvåningen. Även gillestugan och hobbyrummet i källaren kan användas som sovrum. Ett helkaklat badrum på alla 3 planen. Modernt kök med köksö som har 4 sittplatser och öppet mot vardagsrum. Matsal med plats för stort bord intill...

Hyra
14 375 kr per månad
Hyrestid
Mindre än 12 månader
Verifierad hyresvärd
Ja
Datum
Idag
Tillgängligt
2026-03-01
Driftkostnader
Kontakta hyresvärden
Deposition
Kontakta hyresvärden
Förbetald hyra
Kontakta hyresvärden
Plats