7 rum hus i Hallsberg
-
Yta
- 180 m²
-
Bostadstyp
- Hus
-
Rum
- 7 rum
Tillgänglig nu
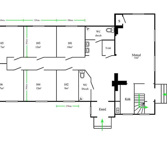
Fastigheten söker företags hyresgäster. Möblerad företagslokal, 180 kvadratmeter, 6st sovrum, kan lätt ändras till kontorsrum, ljudisolerade fönster, stor samlingslokal/matsal, fräscht kök, 2st toaletter med duschar. se ritning. Bra läge i centrala Hallsberg, nära till matbutiker, många flera restauranger och "Alléhallens simhall och gym". Grillplats i trädgård, lugnt villa- område. Gångavstånd till buss och tågstation. Hyra 35 000kr/mån. Ingår flera parkering platser. Vatten och sopor enligt överenskommelse. Hyresavtal måste skrivas via Qa...
- Hyra
- 35 000 kr per månad
- Plats
- 69430, Hallsberg
- Hyrestid
- -
- Verifierad hyresvärd
- Nej
- Datum
- 6 dagar sedan
- Tillgängligt
- Tillgänglig nu
- Driftkostnader
- Kontakta hyresvärden
- Deposition
- Kontakta hyresvärden
- Förbetald hyra
- Kontakta hyresvärden
Plats