6 rum hus i Alingsås
-
Yta
- 157 m²
-
Bostadstyp
- Hus
-
Rum
- 6 rum
Tillgänglig nu
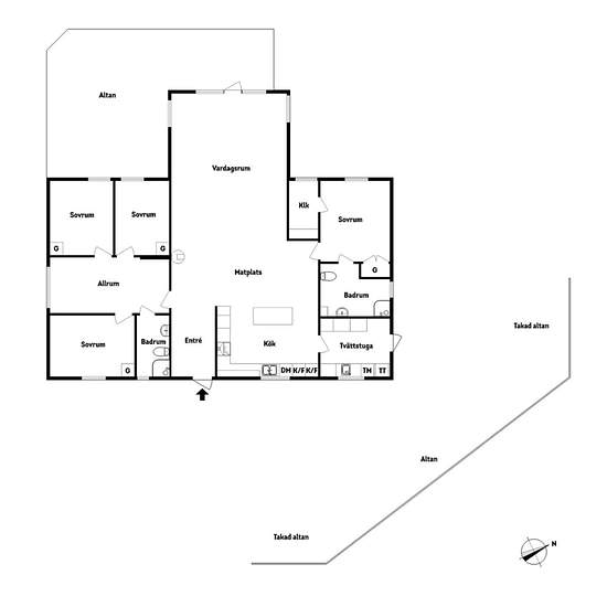
Högstandardvilla uthyres – perfekt för familj Nybyggd och påkostad enplansvilla från 2022 om 157 kvm, 6 rok varav 4 sovrum och 2 badrum. Öppen och ljus planlösning med stort vardagsrum/kök, master bedroom med eget badrum och walk-in-closet samt separat barnavdelning med allrum, badrum och tre sovrum. Rymlig tvättstuga med egen ingång. Smart-home via Plejd och lastbalanseringssystem. Stor och solig uteplats i naturnära och lugnt läge, med närhet till badsjöar och bra pendlingsvägar mot Göteborg och Alingsås. Uthyrningsperiod: 6 månader. H...
- Hyra
- 18 500 kr per månad
- Plats
- 44196, Alingsås
- Hyrestid
- -
- Verifierad hyresvärd
- Nej
- Datum
- 18 dagar sedan
- Tillgängligt
- Tillgänglig nu
- Driftkostnader
- Kontakta hyresvärden
- Deposition
- Kontakta hyresvärden
- Förbetald hyra
- Kontakta hyresvärden
Plats