5 rum hus i Angered
-
Yta
- 135 m²
-
Bostadstyp
- Hus
-
Rum
- 5 rum
Tillgänglig nu
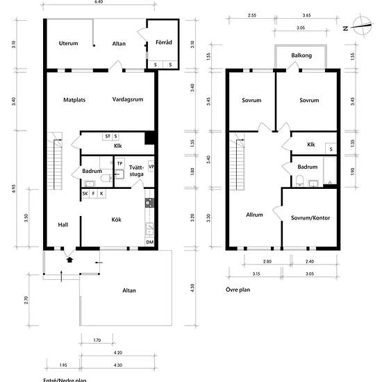
Välskött radhus med underbar trädgård i Angered – perfekt för familjen! Hyrs ut tillsvidare! Omöblerat radhus Boarea: 126 m² Rum: 5 rum Biarea: 38 m² Tomtstorlek: 202 m² 2 st badrum Parkering ingår. El ingår inte. Välkommen till detta charmiga och välplanerade radhus om 5 rum och 126 kvm i boarea, med ytterligare 38 kvm biarea. Här bor du på en lättskött tomt om 202 kvm med en fantastisk trädgård – en riktig oas för både avkoppling och lek. Om bostaden: Detta hem är idealiskt för barnfamiljen som söker ett lugnt och naturnära boende me...
- Hyra
- 18 009 kr per månad
- Plats
- 42450, Angered
- Hyrestid
- -
- Verifierad hyresvärd
- Nej
- Datum
- Igår
- Tillgängligt
- Tillgänglig nu
- Driftkostnader
- Kontakta hyresvärden
- Deposition
- Kontakta hyresvärden
- Förbetald hyra
- Kontakta hyresvärden
Plats