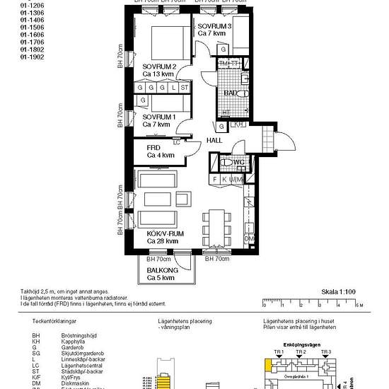
4 rum lägenhet i Solna

Yta
81 m²
Bostadstyp
Lägenhet
Rum
4 rum
Tillgänglig nu

Hyra
17 702 kr per månad
Plats
17066, Solna
Hyrestid
-
Verifierad hyresvärd
Ja
Datum
Idag
Tillgängligt
Tillgänglig nu
Driftkostnader
Kontakta hyresvärden
Deposition
Kontakta hyresvärden
Förbetald hyra
Kontakta hyresvärden
Plats