4 rum lägenhet i Harlösa
-
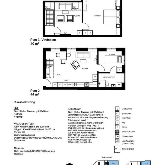
Yta
- 84 m²
-
Bostadstyp
- Lägenhet
-
Rum
- 4 rum
Tillgänglig nu
Rymlig 4:a i Etage på hela 84 kvm. Perfekt för lilla familjen eller 2st militärer/studenter. Vacker och rogivande utsikt mot Harlösaparken med plats för utemöbler och grill. På plan 3 finner du ditt arbetsrum och sovrum med vacker utsikt mot anrika Harlösa Station, numera Bibliotek. Endast 1km till P7 Regementet och MSB. Busshållsplats och bibliotek finns 30m från huset. ICA 300m. Återvinningsstation bakom ICA. Förskola finns i byn. Detta ingår: Kall- och varmvatten, värme och en parkeringsplats. Detta ingår ej: Elabonnemang, tecknas av...
- Hyra
- 11 500 kr per månad
- Plats
- 24165, Harlösa
- Hyrestid
- -
- Verifierad hyresvärd
- Nej
- Datum
- Igår
- Tillgängligt
- Tillgänglig nu
- Driftkostnader
- Kontakta hyresvärden
- Deposition
- Kontakta hyresvärden
- Förbetald hyra
- Kontakta hyresvärden
Plats