3 rum lägenhet i Västerås
-
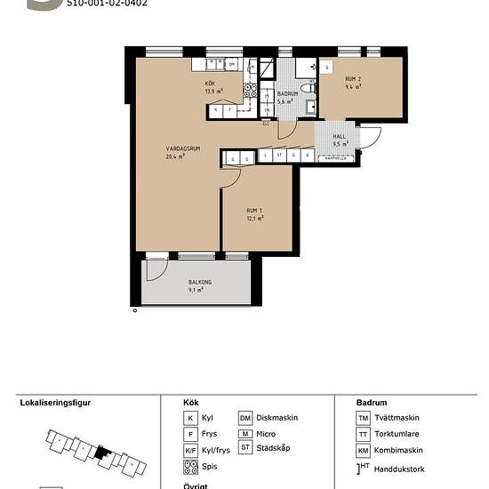
Yta
- 73 m²
-
Bostadstyp
- Lägenhet
-
Rum
- 3 rum
Är du intresserad av kontrakt på den här lägenheten? Anmäl ditt intresse och kontakta ansvarig uthyrare Johan på 7 eller genom att mejla EMAIL Lägenheten kan hyras ut snabbt då den hyrs ut utan köpoäng och inkomna intresseanmälningar behandlas löpande. Inflyttningsdatum är enligt överenskommelse. Läs mer om Poängfritt under Våra boendekoncept. Nordanby Äng erbjuder en modern bostadsmiljö i en grönskande parkmiljö. Området är utformat med gemenskap och trivsel i åtanke, och här hittar du charmiga bostäder, en stor lekpark, växthus och...
- Hyra
- 12 154 kr per månad
- Plats
- 72223, Västerås
- Hyrestid
- -
- Verifierad hyresvärd
- Ja
- Datum
- 2 dagar sedan
- Tillgängligt
- 2026-04-01
- Driftkostnader
- Kontakta hyresvärden
- Deposition
- Kontakta hyresvärden
- Förbetald hyra
- Kontakta hyresvärden
Plats