3 rum lägenhet i Uppsala
-
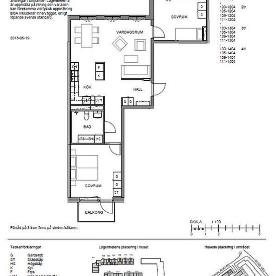
Yta
- 73 m²
-
Bostadstyp
- Lägenhet
-
Rum
- 3 rum
Välkommen till ett hemtrevligt kvarter mitt i den växande stadsdelen Nyby. Lilium ligger i en växande stadsdel i den norra delen av Uppsala, nära Uppsala högar och Linnéstigar. Samtidigt har du tillgång till butiker, restauranger och all tänkbar service i Gränbystaden – bara en kort cykeltur bort. Lägenheterna har vita snickerier och dörrar. Vita skåp och garderober med vita släta luckor. Fönsterbänkar i grå mattslipad natursten. Släta, eklaserade furusocklar. Rumshöjd 2,5 meter generellt förutom entréplan hus B som har 2,7 meter. Postfack...
- Hyra
- 13 862 kr per månad
- Plats
- 75441, Uppsala
- Hyrestid
- -
- Verifierad hyresvärd
- Nej
- Datum
- Idag
- Tillgängligt
- 2026-07-01
- Driftkostnader
- Kontakta hyresvärden
- Deposition
- Kontakta hyresvärden
- Förbetald hyra
- Kontakta hyresvärden
Plats