3 rum lägenhet i Tranås
-
Yta
- 73 m²
-
Bostadstyp
- Lägenhet
-
Rum
- 3 rum
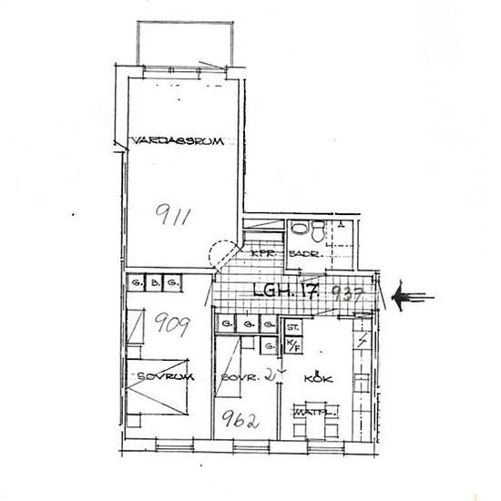
Denna lägenhet är på 73 kvm och ligger på våning 1. Månadshyra 9 405 kronor i hyran ingår vatten och värme. Välkommen till denna trerumslägenhet som ligger i en fastighet med hiss. Balkongen är placerad mot trivsam innergård. Generöst med förvaringsmöjligheter(se planritning). Det finns möjlighet att hyra parkeringsplats i parkeringsgarage. Just nu har vi ett erbjudande på denna lägenhet, kontakta oss gärna för mer information. Lägenheten renoverades delvis under 2023.
- Hyra
- 9 405 kr per månad
- Plats
- 57331, Tranås
- Hyrestid
- -
- Verifierad hyresvärd
- Ja
- Datum
- 24 dagar sedan
- Tillgängligt
- 2026-04-01
- Driftkostnader
- Kontakta hyresvärden
- Deposition
- Kontakta hyresvärden
- Förbetald hyra
- Kontakta hyresvärden
Plats