3 rum lägenhet i Solna
-
Yta
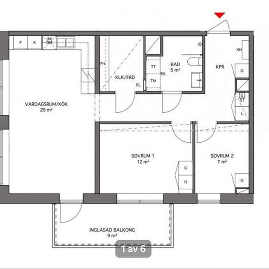
- 70 m²
-
Bostadstyp
- Lägenhet
-
Rum
- 3 rum
Modern nyproducerad 3:a på 20:e våningen med sjöutsikt – intill Westfield Mall of Scandinavia, Solna ( For English See Below) Välplanerad och stilren lägenhet om 70 kvm, byggd 2019, belägen på 20:e våningen med fantastisk utsikt över sjön. Dessutom finns en inglasad balkong på 9 kvm som förlänger säsongen och ger extra utrymme. Lägenheten har en öppen planlösning mellan kök och vardagsrum, två sovrum, samt ett rymligt walk-in-closet. Badrummet är helkaklat och utrustat med takdusch, tvättmaskin och torktumlare. Kvalitativa tillval såso...
- Hyra
- 28 750 kr per månad
- Plats
- 16956, Solna
- Hyrestid
- Mindre än 12 månader
- Verifierad hyresvärd
- Ja
- Datum
- Igår
- Tillgängligt
- 2026-05-01
- Driftkostnader
- Kontakta hyresvärden
- Deposition
- Kontakta hyresvärden
- Förbetald hyra
- Kontakta hyresvärden
Plats