3 rum lägenhet i Malmö
-
Yta
- 80 m²
-
Bostadstyp
- Lägenhet
-
Rum
- 3 rum
Tillgänglig nu
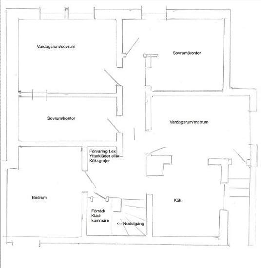
Lägenhet med uteplats nära Ribersborgsstranden för 1-2 personer. ANSÖKAN OM VISNING: 1. Båda ska komma på visning 2. Ange: Person 1: Förnamn, efternamn, arbetsgivare/studier, tel Person 2: Förnamn, efternamn, arbetsgivare/studier Solig och ljus lägenhet i villans källarplan, mycket fönster med utsikt mot grönskan i trädgården. Bild 1: Områdesbild/Översiktsvy Bild 2: Uteplatsen. Bild 3,4: Danskt kvalitetskök, med diskmaskin, bänkskiva i granit. Bild 5,6,7: Badrum, utrustad med tvättmaskin/torktumlare och mycket förvaring. Väggarna delvis k...
- Hyra
- 9 510 kr per månad
- Plats
- 21774, Malmö
- Hyrestid
- -
- Verifierad hyresvärd
- Nej
- Datum
- Igår
- Tillgängligt
- Tillgänglig nu
- Driftkostnader
- Kontakta hyresvärden
- Deposition
- Kontakta hyresvärden
- Förbetald hyra
- Kontakta hyresvärden
Plats