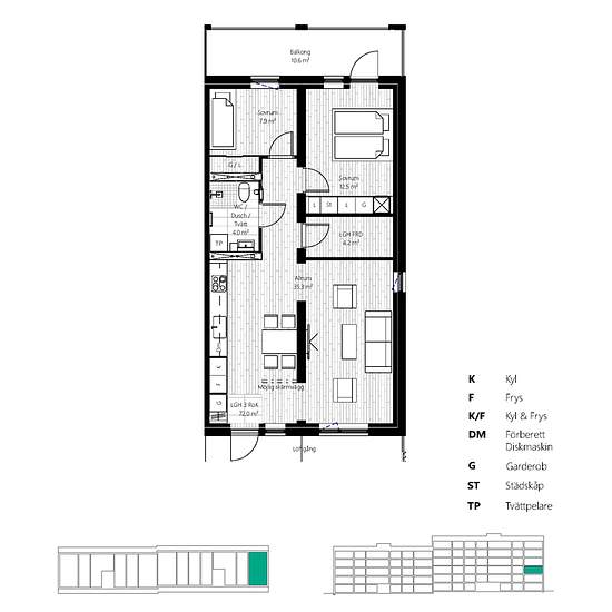
3 rum lägenhet i Haninge
-
Yta
- 72 m²
-
Bostadstyp
- Lägenhet
-
Rum
- 3 rum
Välkommen till en fin 3a på ca 72 kvm på Vendelsömalmsvägen 247 i Haninge. Lägenheten ligger på andra våningen med balkong. I Hyran ingår kallvatten. Vad gäller el ska hyresgästen själv teckna ett elhandelsavtal. Debitering för värme och varmvatten tillkommer efter förbrukning, samt Telia fiber bredbandtelefoni/bas- paket som tillkommer på hyrasavin på 300 kr/mån. Egna avtal för det sistnämnda behöver inte skrivas utan tecknas i samband med kontraktsskrivning. Fysisk visning kommer inte att erbjudas. Vi kommer att skicka de sökande med längs...
- Hyra
- 11 218 kr per månad
- Plats
- 13666, Haninge
- Hyrestid
- -
- Verifierad hyresvärd
- Ja
- Datum
- Idag
- Tillgängligt
- 2026-03-01
- Driftkostnader
- Kontakta hyresvärden
- Deposition
- Kontakta hyresvärden
- Förbetald hyra
- Kontakta hyresvärden
Plats