3 rum lägenhet i Handen

Yta
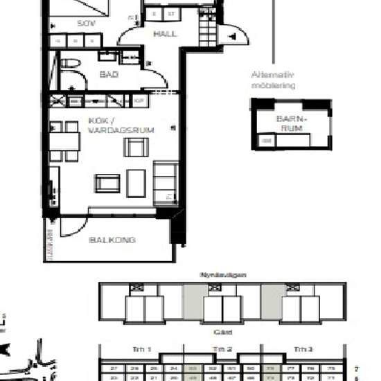
53 m²
Bostadstyp
Lägenhet
Rum
3 rum

Möjligt att hyra depositionsfritt genom Samtrygg. Månadskostnad: 14950 kr. ________________________________________________________________ Snabbast bokar du visning genom att följa denna länk till Samtrygg: Här hittar du även fler bilder och mer info. ________________________________________________________________ Hyr ut en välplanerat 3a i Haninge, på 54 Kvm det är nyproduktion byggt 2021. ett stor sovrum med dubbelsäng,1 litet rum med enkelsäng, badrum, kök och vardagsrum med balkong. Lägenheten uthyrs möblerat, tvättmaskin och to...

Hyra
14 111 kr per månad
Hyrestid
-
Verifierad hyresvärd
Nej
Datum
3 dagar sedan
Tillgängligt
2025-12-21
Driftkostnader
Kontakta hyresvärden
Deposition
Kontakta hyresvärden
Förbetald hyra
Kontakta hyresvärden
Plats