3 rum lägenhet i Göteborg
-
Yta
- 60 m²
-
Bostadstyp
- Lägenhet
-
Rum
- 3 rum
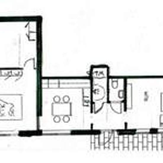
Bo med egen trädgård, som att bo i eget hus! 15-30 minuters promenad från Chalmers, Sahlgrenska, GU och Avenyn. Ensam person eller par, skötsamma med referenser. 3 minuter till bussen. Helt egen insynsskyddad trädgård, egen ingång från gatan till lägenheten. Separat toalett/handfat och eget rum för tvättmaskin/tumlare och dusch. Renoverat 2018. Möjligheter till carport finns. Kök, sovrum med mycket förvaring, extra rum (utan fönster, ny heltäckningsmatta), hall med ljusinsläpp samt vardagsrum med ljusinsläpp från 2 håll. Trägolv och ljust ...
- Hyra
- 16 200 kr per månad
- Plats
- 41279, Göteborg
- Hyrestid
- -
- Verifierad hyresvärd
- Nej
- Datum
- Idag
- Tillgängligt
- 2026-06-01
- Driftkostnader
- Kontakta hyresvärden
- Deposition
- Kontakta hyresvärden
- Förbetald hyra
- Kontakta hyresvärden
Plats