3 rum lägenhet i Borås
-
Yta
- 70 m²
-
Bostadstyp
- Lägenhet
-
Rum
- 3 rum
Tillgänglig nu
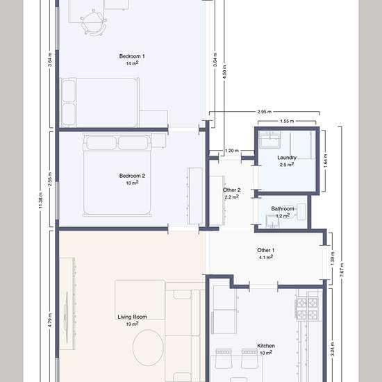
Vi kan nu erbjuda en trerumslägenhet på 70 kvm på Kaptensgatan 12 i Borås. Bostaden är belägen på andra våningen och har en modern standard med genomgående fräsch interiör. Här finns både separat toalett och badrum. Det helkaklade badrummet är förberett för tvättmaskin och torktumlare, vilket ger extra bekvämlighet i vardagen. Lägenheten har dessutom en balkong i västerläge som bjuder på härlig eftermiddags- och kvällssol. Hyra 2026: 9667kr kr/mån I hyran ingår värme, vatten/avlopp samt TV och fiberanslutning via Tele2. Elabonnemang tecknas ...
- Hyra
- 9 667 kr per månad
- Plats
- 50431, Borås
- Hyrestid
- -
- Verifierad hyresvärd
- Ja
- Datum
- Igår
- Tillgängligt
- Tillgänglig nu
- Driftkostnader
- Kontakta hyresvärden
- Deposition
- Kontakta hyresvärden
- Förbetald hyra
- Kontakta hyresvärden
Plats