3 rum lägenhet i Blentarp

Yta
120 m²
Bostadstyp
Lägenhet
Rum
3 rum
Tillgänglig nu

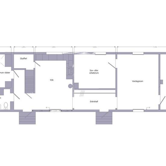
Renoverad villa om ca 120 m2 + källare, vind och garage. Belägen på charmig gård i naturskönt område. - 3 sovrum och vardagsrum - Badrum med golvvärme, tvätt och tork - Kök med kamin - Naturskönt beläget - Trädgårdstomt med fruktträd - Garage ingår - Bredband tillgängligt - Jordvärmepump och FTX-ventilation för bra luftkvalitet och låg energiförbrukning 5 minuter till Blentarp, 15 minuter till Skurup och Veberöd, 20 minuter till Ystad, 30 minuter till Lund, 45 minuter till Malmö samt 60 minuter till Köpenhamn. Möjlighet att separat hyra t...

Hyra
11 880 kr per månad
Hyrestid
-
Verifierad hyresvärd
Nej
Datum
Idag
Tillgängligt
Tillgänglig nu
Driftkostnader
Kontakta hyresvärden
Deposition
Kontakta hyresvärden
Förbetald hyra
Kontakta hyresvärden
Plats