3 rum hus i Morup
-
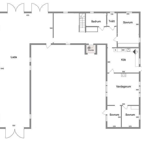
Yta
- 120 m²
-
Bostadstyp
- Hus
-
Rum
- 3 rum
Drömmer du om att bo i lugn och ro på landet med närhet till hav och bad? Då har du hittat rätt! Denna klassiska hallandslänga ligger idylliskt mellan Falkenberg och Varberg, i Morup. Här finns gott om utrymme för dig som har gröna fingrar och vill odla egna grönsaker och bär. Delar av huset, såsom badrum, toalett, tvättrum och det större sovrummet, har renoverats de senaste åren, medan andra delar senast uppdaterades på 90-talet. Fastigheten hyrs ut omöblerad. Ladugården har också renoverats, och delar av den kan nyttjas enligt överenskom...
- Hyra
- 11 000 kr per månad
- Plats
- 31190, Morup
- Hyrestid
- -
- Verifierad hyresvärd
- Nej
- Datum
- 7 dagar sedan
- Tillgängligt
- 2026-04-01
- Driftkostnader
- Kontakta hyresvärden
- Deposition
- Kontakta hyresvärden
- Förbetald hyra
- Kontakta hyresvärden
Plats