
3 rum hus i Bjurholm
-
Yta
- 75 m²
-
Bostadstyp
- Hus
-
Rum
- 3 rum
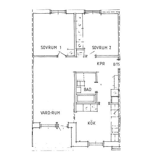
3 rok, uthyres from 1/2 eller tidigare enligt överenskommelse Hyra 7 874 kr/mån, inklusive 2026 års hyreshöjning Storlek: 75,9 m² Uppvärmning: ingår i hyran Hushållsström: ingår ej, eget abonnemang tecknas Parkeringsplats med carport ingår Kabeltv ingår med basutbudet Bredband: ingår inte. abonnemang tecknas separat Tvättstuga: gemensam tvättstuga finns i källarplan men möjlighet att på egen bekostnad montera in en tvättmaskin via fackman Hiss: ja Våning: 2 Balkong: ja Avvikelser på ritning kan förekomma
- Hyra
- 7 874 kr per månad
- Plats
- 91631, Bjurholm
- Hyrestid
- -
- Verifierad hyresvärd
- Ja
- Datum
- 1 dagar sedan
- Tillgängligt
- Kontakta hyresvärden
- Driftkostnader
- Kontakta hyresvärden
- Deposition
- Kontakta hyresvärden
- Förbetald hyra
- Kontakta hyresvärden
Plats