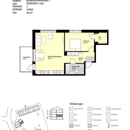
2 rum lägenhet i Växjö
-
Yta
- 64 m²
-
Bostadstyp
- Lägenhet
-
Rum
- 2 rum
Tillgänglig nu
Välkommen till ditt nya boende i Soluppgången. Här bor du i ett lugnt område med charmiga gator endast fyra kilometer från centrala Växjö. Närmsta matbutik har du precis runt hörnet och du bor med närhet till både sjöar och golfbana. Området är familjevänligt och i närheten finner du ett flertal skolor samt en förskola så nära att den är belägen i fastigheten. Här bor du i en lägenhet med välplanerad planlösning, högkvalitativa material och ett generöst ljusinsläpp utöver det vanliga. Här erbjuds du kök med öppna och sociala ytor som ger dig...
- Hyra
- 8 778 kr per månad
- Plats
- 35265, Växjö
- Hyrestid
- -
- Verifierad hyresvärd
- Nej
- Datum
- 2 dagar sedan
- Tillgängligt
- Tillgänglig nu
- Driftkostnader
- Kontakta hyresvärden
- Deposition
- Kontakta hyresvärden
- Förbetald hyra
- Kontakta hyresvärden
Plats