2 rum lägenhet i Västra Frölunda
-
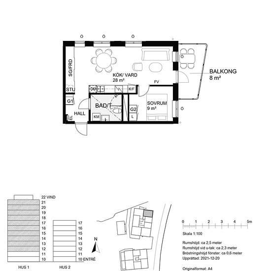
Yta
- 47 m²
-
Bostadstyp
- Lägenhet
-
Rum
- 2 rum
Vi välkomnar dig till en fin 2a på ca 47kvm på Onyxgatan 2 i Tynnered. Lägenheten ligger på våning 4. Kv Parkhuset är belägen utmed Ametistgatan vid nya Opalparken, mellan Frölunda torg och havet i Tynnered i Göteborg. Lägenheten genomgående 3 stavs ekparkett, takhöjd om 2,5 meter och ljusa väggar. Badrummet har klinkergolv och kaklade väggar med duschvägg samt kombimaskin. I köket möts du av släta luckor samt stänkskydd och bänkskiva i laminat med infälld vask, mikro, diskmaskin, inbyggnadsugn och induktionshäll. Lägenheten har även balko...
- Hyra
- 10 133 kr per månad
- Plats
- 42149, Västra Frölunda
- Hyrestid
- -
- Verifierad hyresvärd
- Nej
- Datum
- Idag
- Tillgängligt
- 2026-05-01
- Driftkostnader
- Kontakta hyresvärden
- Deposition
- Kontakta hyresvärden
- Förbetald hyra
- Kontakta hyresvärden
Plats