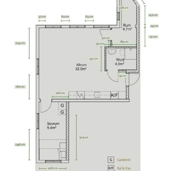
2 rum lägenhet i Västra Frölunda
-
Yta
- 51 m²
-
Bostadstyp
- Lägenhet
-
Rum
- 2 rum
På Långedragsvägen 39 i Västra Frölunda erbjuds en charmig 2,5-rumslägenhet belägen i en vacker gammal kaptensvilla i ett mycket omtyckt område. Här bor du i ett lugnt och trivsamt kvarter med närhet till havet, grönområden och klassisk västkustmiljö, samtidigt som stadens utbud finns inom bekvämt räckhåll. Området erbjuder god tillgång till affärer och service. I närheten finns både mindre butiker, caféer och restauranger, och för ett större utbud nås Frölunda Torg enkelt med kollektivtrafik eller bil. Kommunikationerna är utmärkta med s...
- Hyra
- 17 250 kr per månad
- Plats
- 42671, Västra Frölunda
- Hyrestid
- Mindre än 12 månader
- Verifierad hyresvärd
- Ja
- Datum
- Idag
- Tillgängligt
- 2026-03-01
- Driftkostnader
- Kontakta hyresvärden
- Deposition
- Kontakta hyresvärden
- Förbetald hyra
- Kontakta hyresvärden
Plats