2 rum lägenhet i Västerås
-
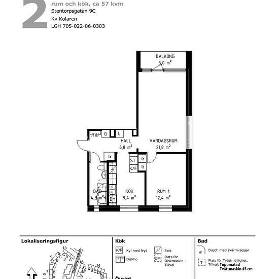
Yta
- 57 m²
-
Bostadstyp
- Lägenhet
-
Rum
- 2 rum
Tillgänglig nu
Malmaberg är ett område i Västerås som passar många. Här bor du bara några minuter från centrum, med bra förbindelser och allt du behöver i närheten. Det finns butiker, restauranger och annan service som gör vardagen smidig. Området har också fina grönområden och gångvägar som passar för både motion och avkoppling. Oavsett om du vill ha ett lugnt boende eller ett hem med närhet till stadens utbud, är Malmaberg ett bra val. Lägenheten helrenoverades 2025 i ljusa toner med ekparkett i vardagsrummet och linoleumgolv i resterande rum. Ba...
- Hyra
- 8 899 kr per månad
- Plats
- 72343, Västerås
- Hyrestid
- -
- Verifierad hyresvärd
- Ja
- Datum
- Idag
- Tillgängligt
- Tillgänglig nu
- Driftkostnader
- Kontakta hyresvärden
- Deposition
- Kontakta hyresvärden
- Förbetald hyra
- Kontakta hyresvärden
Plats