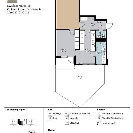
2 rum lägenhet i Västerås
-
Yta
- 70 m²
-
Bostadstyp
- Lägenhet
-
Rum
- 2 rum
Tillgänglig nu
Vill du flytta till Fredriksberg? Här möts lugna grönområden med bekväm närhet till det mesta. Med gångavstånd till skolor, förskolor samt Råby Centrum där du har bibliotek, butiker samt restaurang. Gillar du att bada under bar himmel på sommaren? På Fredriksberg har du förutom bra grönområden med basketplan och lekparker även promenadavstånd till det sommaröppna utomhusbadet Fredriksbergsbadet! Välkommen till en bostad som erbjuder gott om utrymme och smarta lösningar. Här möts du av stora, luftiga rum och generös förvaring som gör ...
- Hyra
- 10 268 kr per månad
- Plats
- 72472, Västerås
- Hyrestid
- -
- Verifierad hyresvärd
- Ja
- Datum
- Idag
- Tillgängligt
- Tillgänglig nu
- Driftkostnader
- Kontakta hyresvärden
- Deposition
- Kontakta hyresvärden
- Förbetald hyra
- Kontakta hyresvärden
Plats