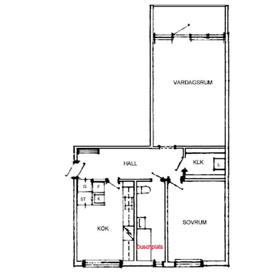
2 rum lägenhet i Västerås

Yta
67 m²
Bostadstyp
Lägenhet
Rum
2 rum
Tillgänglig nu

Hyresrabatt i 12 månader uppdelat i 3 olika perioder. Första perioden: 30% rabatt i 4 månader. Denna hyresrabatt är inkluderad i den hyra som visas i annonsen. Andra perioden: 20% rabatt i 4 månader, hyran blir 7 750:- Tredje perioden: 10% rabatt i 4 månader, hyran blir 8 718:- Ordinarie hyra efter rabatt är 9 687:- Hyran avser 2025 års hyresnivå. Lägenhet med balkong i trivsamt område - välkommen till ditt nya hem. Här bor du i en bostad med två rum och kök, där inget har lämnats åt slumpen. Modernt kök, badrum och fräscha golv gör var...

Hyra
6 781 kr per månad
Hyrestid
-
Verifierad hyresvärd
Ja
Datum
Igår
Tillgängligt
Tillgänglig nu
Driftkostnader
Kontakta hyresvärden
Deposition
Kontakta hyresvärden
Förbetald hyra
Kontakta hyresvärden
Plats