2 rum lägenhet i Uppsala

Yta
64 m²
Bostadstyp
Lägenhet
Rum
2 rum

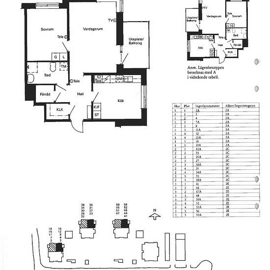
Lägenhet med 2 rum och kök - Korttidskontrakt Letar du efter ett tillfälligt boende? Denna lägenhet med 2 rum och kök står inför renovering och hyrs därför ut på korttidskontrakt. Perfekt för dig som behöver ett flexibelt boende! Lägenheten erbjuder: Hall med plats för avhängning Rymligt vardagsrum med utgång till balkong Kök med plats för matgrupp Nyrenoverat badrum (2024) med dusch, vitt kakel, grå klinker och förberett för tvättmaskin Goda förvaringsmöjligheter i förråd som finns i lägenheten Praktisk information: - Hushållsel ingår ej - ...

Hyra
9 012 kr per månad
Hyrestid
-
Verifierad hyresvärd
Ja
Datum
Idag
Tillgängligt
2026-03-01
Driftkostnader
Kontakta hyresvärden
Deposition
Kontakta hyresvärden
Förbetald hyra
Kontakta hyresvärden
Plats