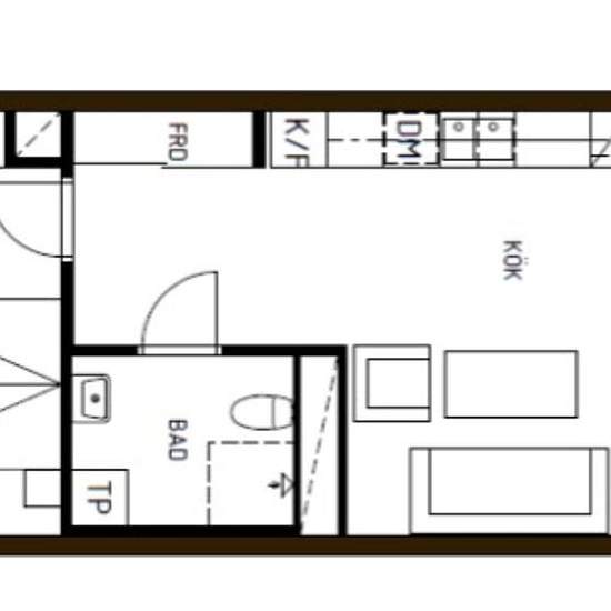
2 rum lägenhet i Täby
-
Yta
- 50 m²
-
Bostadstyp
- Lägenhet
-
Rum
- 2 rum
Tillgänglig nu
Fin lägenhet i lugnt område. Lekplats för barn och strövområden. Nära till buss och Roslagsbanan. Lägenheten är möblerad med 2st sängar och en stor bäddsoffa. TV, Internet, värme, vatten ingår i hyran. Fullt utrustat kök. Serviceavgift för hyresgäst: 743
- Hyra
- 12 500 kr per månad
- Plats
- 18759, Täby
- Hyrestid
- -
- Verifierad hyresvärd
- Nej
- Datum
- 1 dagar sedan
- Tillgängligt
- Tillgänglig nu
- Driftkostnader
- Kontakta hyresvärden
- Deposition
- Kontakta hyresvärden
- Förbetald hyra
- Kontakta hyresvärden
Plats