2 rum lägenhet i Stensele

Yta
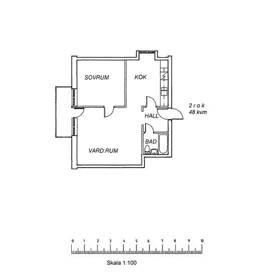
48 m²
Bostadstyp
Lägenhet
Rum
2 rum
Tillgänglig nu

En charmig tvårumslägenhet belägen på Blå Vägen 71B i området Stensele. Byggår 1968 och belägen på andra våningen. Lägenheten erbjuder en trivsam atmosfär med en storlek på 48 kvadratmeter. Med sin bekväma layout och moderna bekvämligheter skapar denna lägenhet det perfekta hemmet för dig som söker en bekväm och stilfull boendelösning. Sveriges största träkyrka med plats för alla Stensele är en mindre tätort ca 3 km söder om Storuman vid Umeälven. I Stensele finner ni inte bara Sveriges största träkyrka utan även natursköna elljuspår samma...

Hyra
3 796 kr per månad
Hyrestid
-
Verifierad hyresvärd
Ja
Datum
20 dagar sedan
Tillgängligt
Tillgänglig nu
Driftkostnader
Kontakta hyresvärden
Deposition
Kontakta hyresvärden
Förbetald hyra
Kontakta hyresvärden
Plats