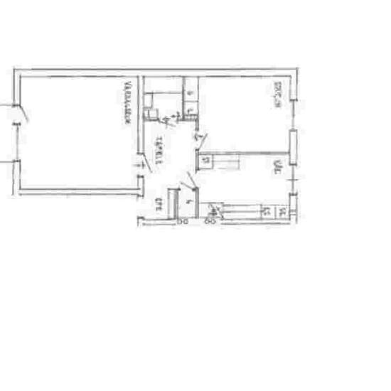
2 rum lägenhet i Piteå

Yta
60 m²
Bostadstyp
Lägenhet
Rum
2 rum

Om lägenheten: Välkommen till denna tvåa i centrala Piteå med vårat koncept premium. Här finns flera rymliga garderober både i hallen och sovrummet. Vardagsrummet är rymligt med yta för fullstort matbord, skrivbord eller lekhörna. Lägenheten ligger en våning upp vilket innefattar trappsteg, hiss finns ej i huset. Lägenheten har en trevlig balkong i söderläge. Lägenhetskoncept – Premium Lägenheten är av kategorin Trumbäcken Premium – ”Nyproduktion i ett äldre skal”. I en premiumlägenhet har du alltid ett modernt kök och badrum. Vi installe...

Hyra
9 658 kr per månad
Hyrestid
-
Verifierad hyresvärd
Ja
Datum
2 dagar sedan
Tillgängligt
2026-03-01
Driftkostnader
Kontakta hyresvärden
Deposition
Kontakta hyresvärden
Förbetald hyra
Kontakta hyresvärden
Plats