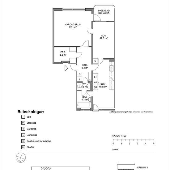
2 rum lägenhet i Motala
-
Yta
- 71 m²
-
Bostadstyp
- Lägenhet
-
Rum
- 2 rum
Balkong El Ingår ej Hiss Saknas Uteplats Nej Varmvatten Ingår Vatten Ingår Värme Ingår
- Hyra
- 6 650 kr per månad
- Plats
- 59173, Motala
- Hyrestid
- -
- Verifierad hyresvärd
- Ja
- Datum
- Idag
- Tillgängligt
- 2026-04-01
- Driftkostnader
- Kontakta hyresvärden
- Deposition
- Kontakta hyresvärden
- Förbetald hyra
- Kontakta hyresvärden
Plats