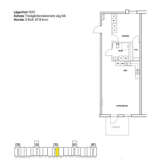
2 rum lägenhet i Märsta
-
Yta
- 67 m²
-
Bostadstyp
- Lägenhet
-
Rum
- 2 rum
Tillgänglig nu
- Hyra
- 14 089 kr per månad
- Plats
- 19559, Märsta
- Hyrestid
- -
- Verifierad hyresvärd
- Ja
- Datum
- 10 dagar sedan
- Tillgängligt
- Tillgänglig nu
- Driftkostnader
- Kontakta hyresvärden
- Deposition
- Kontakta hyresvärden
- Förbetald hyra
- Kontakta hyresvärden
Plats