2 rum lägenhet i Kungälv

Yta
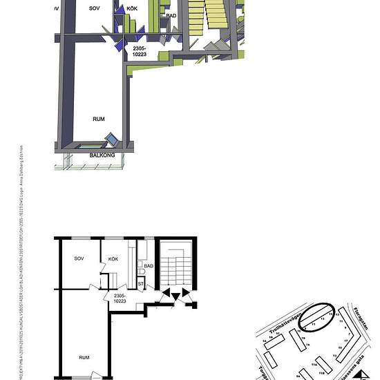
58 m²
Bostadstyp
Lägenhet
Rum
2 rum

Adresser: Östra centrum - Vendergatan, Torggatan, Trollhättevägen, Ivar Claessons gata och Floragatan. Västra centrum - Parkgatan, Rådmansgatan, Kristinedalsgatan och Gamla Gärdesgatan, Gamla Torget, Rökgatan Byggår: 1937 -2006 P-plats: Finns att hyra i området, efterfrågan är dock större än tillgången. P-plats finns att hyra i varmgarage på Rexegården. På Torggatan 6 finns en p-plats till varje lägenhet. Östra centrum I centrala delen av Kungälv, öster om Uddevallavägen och Nytorget, ligger ett flertal 3-4 våningshus i äldre stadsbebyggel...

Hyra
6 689 kr per månad
Hyrestid
-
Verifierad hyresvärd
Ja
Datum
Idag
Tillgängligt
2026-01-01
Driftkostnader
Kontakta hyresvärden
Deposition
Kontakta hyresvärden
Förbetald hyra
Kontakta hyresvärden
Plats