2 rum lägenhet i Karlskrona
-
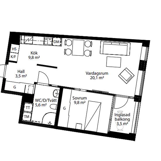
Yta
- 51 m²
-
Bostadstyp
- Lägenhet
-
Rum
- 2 rum
Tillgänglig nu
FÖRETAGSBOENDE ÖVERNATTNINGSLÄGENHET / KONTOR Något utöver det vanliga. Nyproducerad lägenhet 5 meter från kajen med fantastisk havsutsikt. Genomgående högsta standard. Helkaklat stort badrum med tvätt och tork, handdukstork, strykbänk, golvvärme. Ekgolv, Fullutrustat Vedum kök, Stenskiva i kök, Kök och vardagsrum i öppen planlösning med höga fönster mot havet. Sovrum med stor garderobsvägg med skjutdörrar, Fantastisk havsutsikt. Inglasad balkong mot havet. Bra förvaring i hallen. Uthyres delvis möblerad till företag årsvis. Kontakta hyres...
- Hyra
- 11 450 kr per månad
- Plats
- 37131, Karlskrona
- Hyrestid
- -
- Verifierad hyresvärd
- Nej
- Datum
- 2 dagar sedan
- Tillgängligt
- Tillgänglig nu
- Driftkostnader
- Kontakta hyresvärden
- Deposition
- Kontakta hyresvärden
- Förbetald hyra
- Kontakta hyresvärden
Plats