2 rum lägenhet i Kåge
-
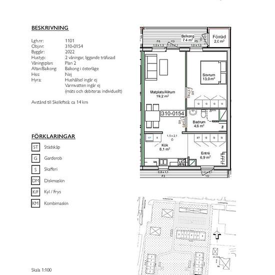
Yta
- 54 m²
-
Bostadstyp
- Lägenhet
-
Rum
- 2 rum
Tillgänglig nu
Balkong finns Balkongtypen är vanlig Förrådets placering: I anslutning till bostaden Hiss saknas Hushållsel ingår ej Hustyp: Loftgångshus Hyreslägenhet Internetanslutning finns Kallvatten ingår/ej varmvatten Tvätt- och diskmaskin finns Tvättmöjligheter: I badrum (hg betalar el själv) Väderstreck: Österläge på balkong/uteplats Värme ingår Ägare: Skelleftebostäder AB
Bekvämligheter i närheten
- Matvarubutik: Willys -
- 8.0 km
- Fitness: Friskis & Svettis -
- 8.4 km
- Dagis: Norrbacka Förskola -
- 8.7 km
- Hyra
- 9 432 kr per månad
- Plats
- 93432, Kåge
- Hyrestid
- -
- Verifierad hyresvärd
- Ja
- Datum
- Idag
- Tillgängligt
- Tillgänglig nu
- Driftkostnader
- Kontakta hyresvärden
- Deposition
- Kontakta hyresvärden
- Förbetald hyra
- Kontakta hyresvärden
Plats