2 rum lägenhet i Kåge
-
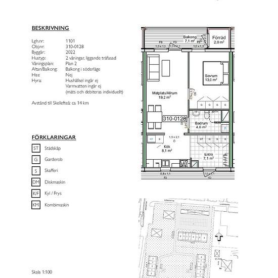
Yta
- 54 m²
-
Bostadstyp
- Lägenhet
-
Rum
- 2 rum
Tillgänglig nu
Balkong finns Balkongtypen är vanlig Förrådets placering: I anslutning till bostaden Förrådstyp enskilt förråd med dörr Hiss saknas Hushållsel ingår ej Hustyp: Loftgångshus Hyreslägenhet Internetanslutning finns Kallvatten ingår/ej varmvatten Tvätt- och diskmaskin finns Tvättmöjligheter: I badrum (hg betalar el själv) Väderstreck: Söderläge på balkong/uteplats Värme ingår Ägare: Skelleftebostäder AB
- Hyra
- 9 634 kr per månad
- Plats
- 93432, Kåge
- Hyrestid
- -
- Verifierad hyresvärd
- Ja
- Datum
- Igår
- Tillgängligt
- Tillgänglig nu
- Driftkostnader
- Kontakta hyresvärden
- Deposition
- Kontakta hyresvärden
- Förbetald hyra
- Kontakta hyresvärden
Plats