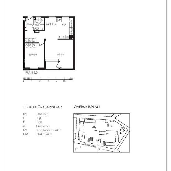
2 rum lägenhet i Höganäs
-
Yta
- 58 m²
-
Bostadstyp
- Lägenhet
-
Rum
- 2 rum
Tillgänglig nu
Upptäck denna lägenhet som genomgick en totalrenovering år 2023. Med ljusa väggar och vackert parkettgolv som kompletteras med klinker i hallen är detta hem en fröjd för ögat. Den generösa balkongen välkomnar ljuset från förmiddagssolen och skapar en härlig atmosfär. Upplev det perfekta sammanflödet av modern elegans och bekvämlighet i denna välskötta bostad. Badrum med dusch Balkong Bredbands leverantör Z-market Duschdörr/duschvägg Genomgående lgh Hushållsel ingår ej Individuell mätning TV leverantör Telia Lagom 2022-01-01 t om 2026-12-31
- Hyra
- 8 118 kr per månad
- Plats
- 26336, Höganäs
- Hyrestid
- -
- Verifierad hyresvärd
- Ja
- Datum
- Idag
- Tillgängligt
- Tillgänglig nu
- Driftkostnader
- Kontakta hyresvärden
- Deposition
- Kontakta hyresvärden
- Förbetald hyra
- Kontakta hyresvärden
Plats