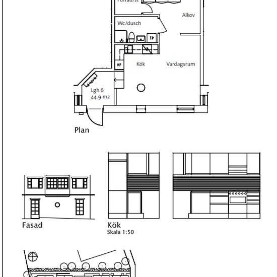
2 rum lägenhet i Göteborg
-
Yta
- 45 m²
-
Bostadstyp
- Lägenhet
-
Rum
- 2 rum
I Brämaregården väntar en modern och välplanerad tvåa med centralt läge och unik planlösning. Lägenheten ligger på markplan och har egen entré direkt från gatan, vilket ger en privat och hemtrevlig känsla. Här får du diskmaskin samt egen tvättmaskin och torktumlare som förenklar vardagen. Den gemensamma innergården blir en naturlig plats för avkoppling och sociala stunder. Inflyttning planeras till den 1 maj 2026. Här bor du på centrala Hisingen med närhet till både stadspuls och grönska. Promenera till Kvilletorget och Kville Saluhall fö...
- Hyra
- 7 951 kr per månad
- Plats
- 41702, Göteborg
- Hyrestid
- -
- Verifierad hyresvärd
- Ja
- Datum
- Igår
- Tillgängligt
- 2026-05-01
- Driftkostnader
- Kontakta hyresvärden
- Deposition
- Kontakta hyresvärden
- Förbetald hyra
- Kontakta hyresvärden
Plats